Dachrinnengrößen halbrunde Dachrinne:
| Nenngröße | d1 | d2 | e | f | g | s(Al) | s(Cu) | s(Zn) | Alternative Bezeichnung | ||||
|---|---|---|---|---|---|---|---|---|---|---|---|---|---|
| 200 | 16 | 80 | 5 | 8 | 5 | 0,70 | 0,60 | 0,65 | Dachrinne 10 teilig | 10 tlg. 200 mm | 20er Rinne | NW 80 | RG 75 |
| 250 | 18 | 105 | 7 | 10 | 5 | 0,70 | 0,60 | 0,65 | Dachrinne 8 teilig | 8 tlg. 250 mm | 25er Rinne | NW 105 | RG 100 |
| 280 | 18 | 127 | 7 | 11 | 6 | 0,70 | 0,60 | 0,70 | Dachrinne 7 teilig | 7 tlg. 285 mm | 28er Rinne | NW 127 | RG 125 |
| 333 | 20 | 153 | 9 | 11 | 6 | 0,70 | 0,60 | 0,70 | Dachrinne 6 teilig | 6 tlg. 333 mm | 33er Rinne | NW 153 | RG 150 |
| 400 | 22 | 192 | 9 | 11 | 6 | 0,80 | 0,70 | 0,70 | Dachrinne 5 teilig | 5 tlg. 400 mm | 40er Rinne | NW 190 | RG 190 |
| 500 | 22 | 250 | 9 | 11 | 6 | 0,80 | 0,70 | 0,80 | Dachrinne 4 teilig | 4 tlg. 500 mm | 50er Rinne | NW 250 | RG 250 |
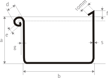
Dachrinnengrößen Dachrinne kastenform:
| Nenngröße | a [mm] | b [mm] | d [mm] | e [mm] | f [mm] | g [mm] | s(Al) [mm] | s(Cu) [mm] | s(Zn) [mm] | Alternative Bezeichnung | ||||
|---|---|---|---|---|---|---|---|---|---|---|---|---|---|---|
| 200 | 42 | 70 | 16 | 5 | 8 | 5 | 0,70 | 0,60 | 0,65 | Kastenrinne 10 teilig | 10 tlg. 200 mm | 20er Rinne | NW 70 | RG 75 |
| 250 | 55 | 85 | 18 | 7 | 10 | 5 | 0,70 | 0,60 | 0,65 | Kastenrinne 8 teilig | 8 tlg. 250 mm | 25er Rinne | NW 85 | RG 100 |
| 280 | 65 | 100 | 20 | 7 | 10 | 6 | 0,70 | 0,60 | 0,65 | Kastenrinne 7 teilig | 7 tlg. 285 mm | 28er Rinne | NW 100 | RG 125 |
| 333 | 75 | 120 | 20 | 9 | 10 | 6 | 0,70 | 0,60 | 0,70 | Kastenrinne 6 teilig | 6 tlg. 333 mm | 33er Rinne | NW 125 | RG 150 |
| 400 | 90 | 150 | 22 | 9 | 10 | 6 | 0,80 | 0,70 | 0,70 | Kastenrinne 5 teilig | 5 tlg. 400 mm | 40er Rinne | NW 150 | RG 190 |
| 500 | 110 | 200 | 22 | 9 | 10 | 6 | 0,80 | 0,70 | 0,80 | Kastenrinne 4 teilig | 4 tlg. 500 mm | 50er Rinne | NW 200 | RG 250 |
Dachrinnengrößen Aufdachrinne:
| Nenngröße | a [mm] | b [mm] | c [mm] | d [mm] | e [mm] | s(Cu) [mm] | s(Zn) [mm] | Alternative Bezeichnung | ||||
|---|---|---|---|---|---|---|---|---|---|---|---|---|
| 400 | 130 | 160 | 55 | 20 | 15 | 0,60 | 0,65 | Aufdachrinne 5-teilig | 5-teilig 400 mm | 40er Rinne | ||
| 500 | 130 | 260 | 55 | 20 | 15 | 0,60 | 0,65 | Aufdachrinne 4-teilig | 4-teilig 500 mm | 50er Rinne | ||
Fallrohr Durchmesser (rund):
| Nenngröße | d1 [mm] | s(Al) [mm] | s(Cu) [mm] | s(Zn) [mm] | Alternative Bezeichnung | ||||
|---|---|---|---|---|---|---|---|---|---|
| 50 | 50 | 0,70 | 0,60 | 0,65 | Fallrohr DN 50 | NW 50 | |||
| 60 | 60 | 0,70 | 0,60 | 0,65 | Fallrohr DN 60 | NW 60 | |||
| 76 | 76 | 0,70 | 0,60 | 0,65 | Fallrohr DN 76 | NW 76 | |||
| 80 | 80 | 0,70 | 0,60 | 0,65 | Fallrohr DN 80 | NW 80 | |||
| 87 | 87 | 0,70 | 0,60 | 0,65 | Fallrohr DN 87 | NW 87 | |||
| 100 | 100 | 0,70 | 0,60 | 0,65 | Fallrohr DN 100 | NW 100 | |||
| 120 | 120 | 0,70 | 0,60 | 0,70 | Fallrohr DN 120 | NW 120 | |||
| 150 | 150 | 0,70 | 0,60 | 0,70 | Fallrohr DN 150 | NW 150 | |||
Fallrohr Größen (quadratisch):
| Nenngröße | a [mm] | b [mm] | s(Al) [mm] | s(Cu) [mm] | s(Zn) [mm] | Alternative Bezeichnung | ||||
|---|---|---|---|---|---|---|---|---|---|---|
| 60 | 60 | 60 | 0,70 | 0,60 | 0,65 | Fallrohr DN 60 | NW 60 | 60 x 60 mm | ||
| 80 | 80 | 80 | 0,70 | 0,60 | 0,65 | Fallrohr DN 80 | NW 80 | 80 x 80 mm | ||
| 100 | 100 | 100 | 0,65 | 0,60 | 0,65 | Fallrohr DN 100 | NW 100 | 100 x 100 mm | ||
| 120 | 120 | 120 | 0,70 | 0,60 | 0,65 | Fallrohr DN 120 | NW 120 | 120 x 120 mm | ||
Erläuterung der Maßangabe tlg. (teilig):
Bei der Angabe der Dachrinnengrößen finden Sie die Angaben „10-tlg.“ bis „4-tlg.“. Dies ist nicht die Anzahl von Teilstücken, aus der eine Rinne besteht, sondern die Größe der Dachrinne. Eine Bezeichnung wie bsw. "10-teilig" stammt noch aus der Zeit, als die Rinnen durch Teilen eines Normbleches von 2 Metern Breite in gleich große Streifen entstanden. Die wurden dann in die übliche Form gebogen.
Eine 10-teilige Rinne hatte als Grundlage also einen Blechstreifen von 20 cm (200 cm : 10). Eine 5-teilige Rinne hatte als Grundlage also einen Blechstreifen von 40 cm (200 cm : 5).
Heute sind für Dachrinnen 3 Größenangaben üblich, diese werden nicht mehr nur durch Ihren Teiler benannt, sondern durch das Maß des zugrundeliegenden Blechstreifens, oder des Durchmessers der Dachrinne.
Die als Beispiel aufgeführte 10-teilige Dachrinne = Nenngröße 200mm = Durchmesser 80mm.
In unseren oben gezeigten Tabellen finden Sie alle Größenangaben und Materialstärken.